Melktechniek

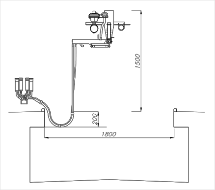
Om de koeien snel en diervriendelijk te kunnen melken past Klesan de melktechniek toe die ontstaan is uit een jaren lange ervaring met swing over melkstallen. De belangrijke items van deze techniek is dat er simultaan (4x0) gemolken wordt, en de melkklauw een inhoud heeft van 150 ml, en er een opvoerhoogte is van 1.20 mtr. tot 1,50 mtr. De lengte en diameter van de lange melkslang zijn bepalend om de juist kolom melk te creëren die met de juiste snelheid naar de melkleiding wordt afgevoerd.
We willen een relatief hoog vacuüm onder de speen hebben als de tepelvoering open gaat en een zo laag mogelijk vacuüm als de tepelvoering gesloten is. De tepelvoering speelt een zeer belangrijke rol in de rust fase als het vacuüm zeer laag is, omdat het melkstel niet mag af vallen en daarom hebben wij de
K15-516 tepelvoering ontwikkeld om dit te voorkomen.

Wat gebeurt er onder de speen
Als het melkstel is aangesloten en de koe geeft zijn melk zie je in het grafiek wat er gebeurt. Zodra de tepelvoering open gaat (b-fase) heeft de koe kort een hoog vacuüm aan de speen. De melk van alle 4 de kwartieren(spenen) stroomt de melkklauw in en deze raak vol met melk waardoor het vacuüm onder de speen met ongeveer 10 kPa zakt tijdens de melkfase(b-fase),
Daarna moet de melk naar boven worden afgevoerd waardoor er een kolom melk in de lange melkslang ontstaat en het vacuüm in de rust fase(d-fase) verder naar beneden gaat na ongeveer 15 kPa (zie bovenstaande grafiek).
Als de melk in de lange melkslang is afgevoerd gaat de tepelvoering weer open en begint de cyclus weer van voor af aan, die gebeurt 60 keer in een minuut.
Conclusie: als er gemolken moet worden is er een relatief hoog vacuüm en als er rust is een laag vacuüm.